Главная Новости

Новости

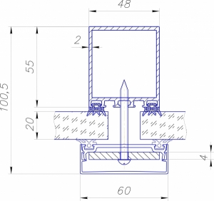
Компания ООО Святогорье провела сертификацию на пулестойкость защитных перегородок на базе системы Т48Ф
08.06.2010

Компания ООО "Святогорье" провела сертификацию согласно требованиям ДСТУ 4547:2006 на пулестойкость защитных перегородок на базе системы Т48Ф.

Перегородки СВ-ПЗП-ОЗК2 выпускаются серийно согласно ТУ У 28.1-30952887-001:2010.

Средства поражения и оружие: 7,62мм пули со сферической головной частью и стальным сердечником в стальной оболочке пистолетного патрона ТТ. 


Copyright © 1992-2018 Talisman LTD
Все права защищены
Разработка сайта
Лаймнет