Главная Новости

Новости

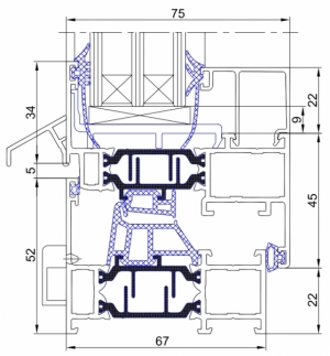
Новая система Окно-Витраж-Дверь С67.
02.06.2010

Система С67 имеет базовый размер 67мм для рамы и 75мм для створки.

Основу системы составляют комбинированные профили, состояшие из двух алюминиевых профилей, соединённых между собой с помощью двух термовставок из армированного стекловолокном полиамида длиной 34мм.  Термовставки имеют Ш-образную форму, за счёт чего уменьшается конвекция в межпрофильном пространстве, этой же цели служат удлинённые фартуки уплотнителей стеклопакетов. 

Заполнение конструкций предусмотрено от 24 до 42мм.

В основу системы заложен «европаз», это позволяет использовать механизмы запирания ведущих европейских фирм-производителей оконной фурнитуры («Sobinco», «Roto», «Fapim», «Savio», «Giesse» и др.)

В октябре 2009г. ГНИИСК были проведены квалификационные испытания оконных  конструкций из алюминиевых профилей системы С67. Экспериментальная величина сопротивления теплопередаче - 0,7м2. С/Вт (протокол №77к/09 от 23.10.2009).

Скачать каталог системы С67 (Окно-Витраж-Дверь)

 

    


Copyright © 1992-2018 Talisman LTD
Все права защищены
Разработка сайта
Лаймнет